Rif: 3V390
FIRENZE
FIRENZE - zona Careggi - Rifredi - Dalmazia
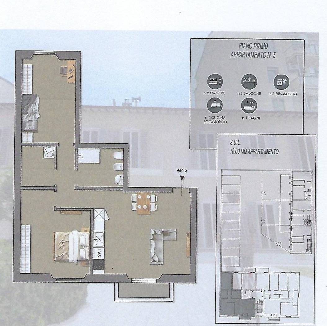
Firenze, Via Reginaldo Giuliani a due passi da Piazza Dalmazia, proponiamo un ampio trilocale di circa mq 78 con balcone L'appartamento, di nuova realizzazione, è posto al primo piano di una piccola palazzina. E' composto da soggiorno con angolo cottura, due camere da letto, ripostiglio, servizio. Riscaldamento autonomo. E' perfetto non soltanto per abitazione principale ma anche per investimento per la vicinanza a tutti i servizi, alla tramvia, Università e Azienda Ospedaliera di Careggi. Prezzo Eu. 390.000. Per informazioni chiamare il numero 328 39994922.
Consistenze
| Descrizione | Superficie | Sup. comm. |
|---|---|---|
| Principali | ||
| Immobile - 1° piano | 78 Mq | 78 Mqc |
| Totale | 78 Mqc | |






